
Réhabilitation contemporaine en secteur sauvegardé
Le projet fictif, réalisé dans le cadre d’un exercice scolaire, porte sur la réhabilitation complète d’un appartement ancien situé au cœur du centre historique de Montpellier. Le bien se trouve en secteur sauvegardé, ce qui implique la conservation d’éléments patrimoniaux existants, tels que les célèbres barres de Montpellier au sol et les menuiseries extérieures d’origine.
L’enjeu du projet : transformer un espace cloisonné en un lieu de vie contemporain, lumineux et fonctionnel, tout en respectant les contraintes du bâti ancien.
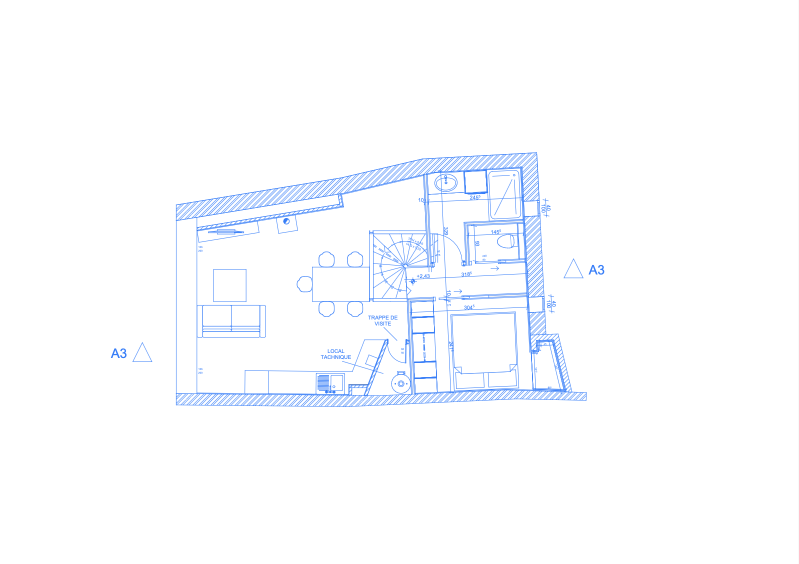
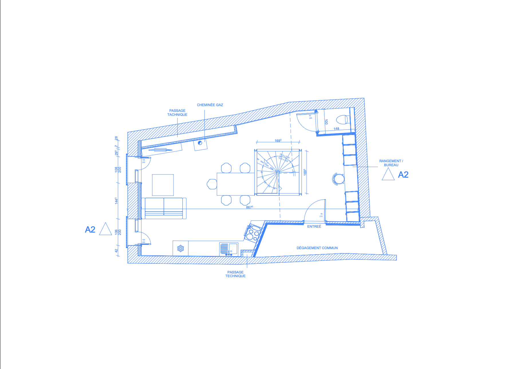
Le concept : un noyau structurant
Le cœur de l’appartement a été repensé autour d’un escalier central en structure IPN, véritable colonne vertébrale du projet. Il dessert les différents niveaux tout en jouant un rôle architectural fort : délimiter sans cloisonner, et organiser les fonctions de vie autour de lui.
Ambiance intérieure
L’image illustre une atmosphère chaleureuse et moderne :
- Une mezzanine en structure bois, qui vient exploiter intelligemment la hauteur sous plafond pour créer un espace en plus.
- Une palette de matériaux bruts et naturels (bois, IPN, carrelage effet pierre),
- Une cuisine ouverte aux lignes graphiques et aux touches de couleurs profondes,
- Un espace repas convivial, baigné de lumière naturelle grâce à un puits de lumière zénithal,
- Un coin salon cosy, avec poêle contemporain et touches végétales,
Jeu de volumes et de perspectives
L’alternance entre espaces ouverts, double hauteur, mezzanine et cloisons partielles crée un rythme architectural dynamique et contemporain, en totale opposition avec la configuration d’origine. Le choix de couleurs vives et de mobilier design ajoute une touche jeune et actuelle à l’ensemble.









