Étude de conception : rénovation d’un bar à sushi à Montpellier
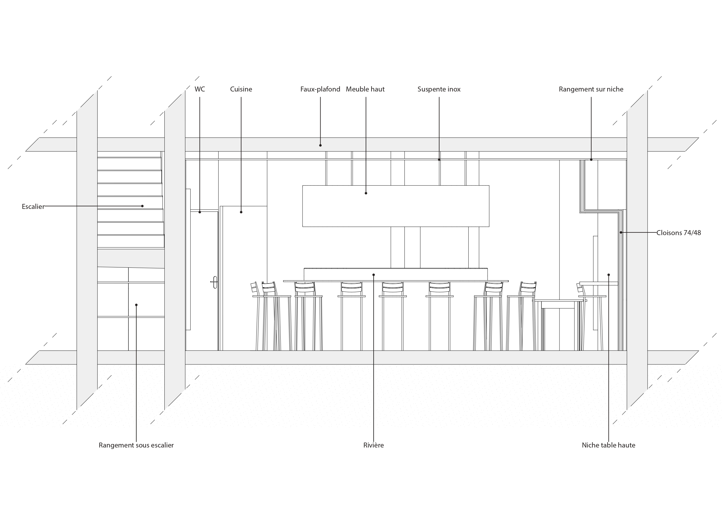
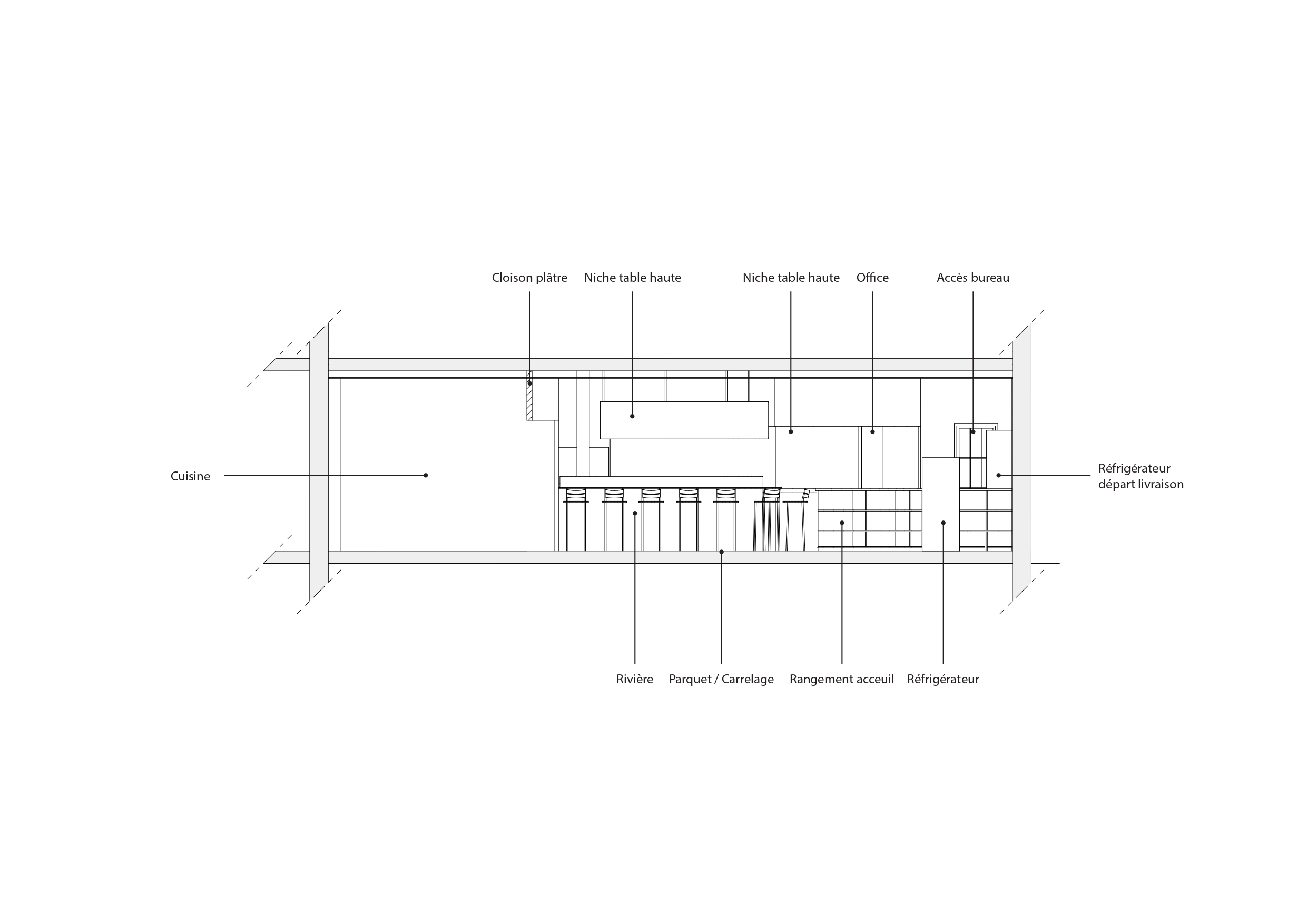
Ce projet de rénovation partielle d’un bar à sushi à Montpellier s’est articulé autour de plusieurs axes majeurs : l’optimisation des espaces, l’amélioration de l’ergonomie pour le personnel et l’expérience client, ainsi que le choix de matériaux alliant esthétique et fonctionnalité.
Un travail particulier a été mené sur la praticité des surfaces afin de répondre aux exigences d’un environnement de restauration tout en garantissant une identité visuelle cohérente. L’éclairage artificiel a également été étudié pour structurer l’espace et créer une ambiance immersive adaptée au concept du lieu.
L’ensemble de cette étude a permis d’explorer des solutions innovantes visant à optimiser l’organisation du bar tout en renforçant son attractivité et son confort d’usage.











Laisser un commentaire