L’HÉRITAGE

Modernisation des pontons des pêcheurs de Palavas-les-Flots

Ce projet de modernisation vise à valoriser l’activité de la pêche tout en sécurisant le travail des pêcheurs et en embellissant le centre-ville de Palavas-les-Flots. Intitulé L’HÉRITAGE, il puise son inspiration dans les formes emblématiques des joutes Palavasiennes. Ces courbes, devenues symboles, sont réinterprétées avec élégance dans la conception architecturale du ponton.

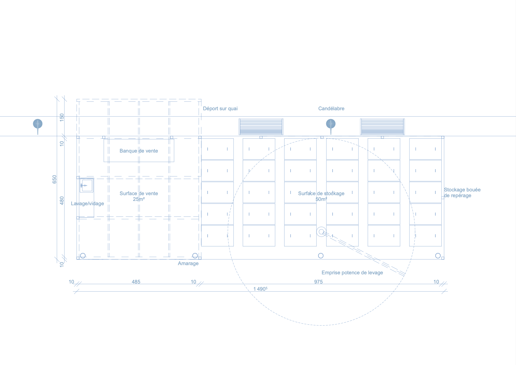
La structure se compose de lignes courbes en acier thermolaqué, étirées pour créer un rendu visuel fluide et agréable, sans jamais dénaturer les quais palavasiens. Le ponton distingue deux espaces : Un espace de vente et d’entretien & Un espace de stockage, équipé d’une potence de levage adaptée.

Pour assurer la sécurité, des panneaux ajourés sont installés le long du quai, suivant la même courbe que la structure, permettant de créer une séparation

suivant la même courbe que la structure, permettant de créer une séparation douce entre le domaine public et l’espace privé des pêcheurs, sans altérer la vue sur le Lez.

Les bacs de stockage sont intégrés dans l’ensemble, peints dans la même teinte que la structure, avec des capots amovibles en aluminium pour protéger les filets. Le tout forme un ensemble fonctionnel, harmonieux et respectueux de l’identité locale.

Ce projet incarne un véritable héritage culturel et patrimonial, pensé pour s’intégrer avec justesse dans le paysage urbain tout en répondant aux besoins concrets des professionnels de la mer.